PLOCHA DOMU: 107 m²
ENERGETICKÝ CERTIFIKÁT: A
PLOCHA POZEMKU: 432 m²
ZASTAVANÁ PLOCHA: 129 m²
CENA DOMU: 209 999 EUR
Ponúkame Vám moderné bývanie v novej rezidenčnej zóne Rezidencia Veselé – ideálne riešenie domu za cenu 3izb. bytu v Piešťanoch.
Pre rodiny, ktoré svoje bývanie hľadajú v pokojnej a atraktívnej lokalite máme v ponuke v samostatne stojace domy v radovej zástavbe ( krajný z pravej strany )ktoré sú prepojené prístreškom pre auto.
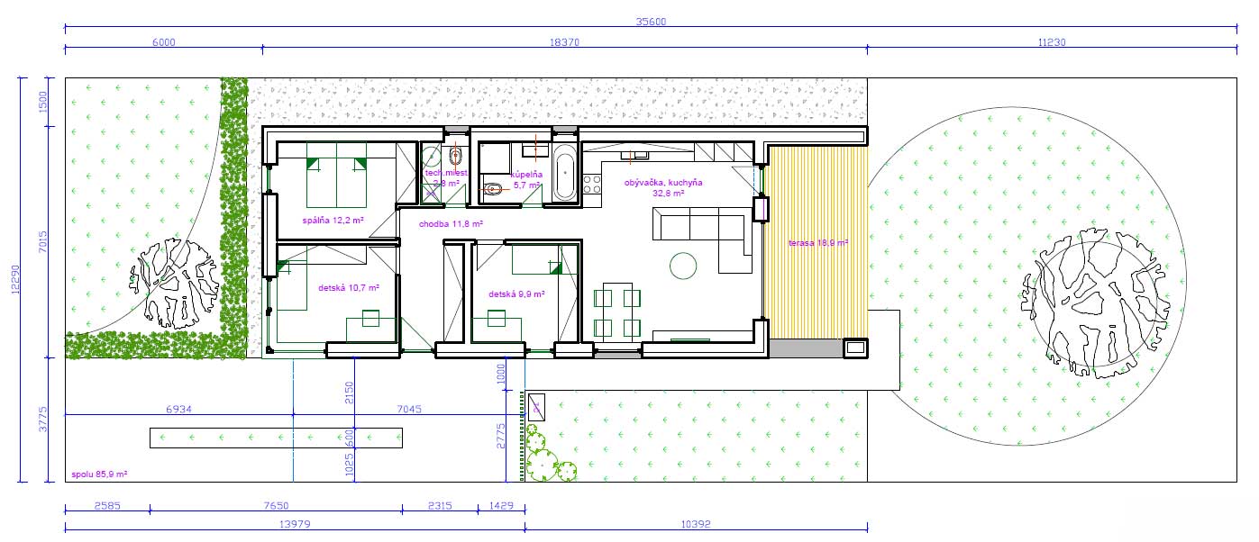
Táto praktická novostavba typu bungalov sa nachádza na pozemku s rozlohou 385 m² a ponúka podlahovú plochu 90 m² + 20 m² prekrytej terasy . Jedným z mnohých benefitov domu je 100 m² úložného priestoru v podstreší s jednoduchým prístupom rolovacími schodmi zo vstupnej chodby. K domu prislúchajú vybudované 3 parkovacie státia z toho je 1 prekryté a oplotenie pozemku.
Dom je navrhnutý s dôrazom na funkčnosť priestoru:
• Vstupná chodba vrátane priestoru na šatníkovú skriňu a prístup do podstrešia
• 3 x plnohodnotne samostatné izby (spálňa rodičov so šatníkom, detská izba, hosťovská izba)
• Kúpeľňa s vaňou, sprchovým kútom, WC a umývadlom
• Druhá samostatná toaleta je súčasťou technickej miestnosti s priestorom na práčku a sušičku
• Obývacia izba prepojená s kuchyňou zabezpečuje príjemný otvorený priestor s priamym výstupom na terasu. Cez veľké okno máte krásny výhľad do celej záhrady.
• Podlahové kúrenie a chladenie tepelným čerpadlom
• Príprava na exteriérové žalúzie, videovrátnika a fotovoltaické panely
Dom bol postavený ako nízkoenergetická stavba z 300 tehly, zateplený 150 EPS, v podstreší ekologicky izolačný systém Steico Zell – fúkané drevovlákno v hr.400 čo zabezpečuje komfortné a úsporné bývanie na dlhé roky. Dizajn domu tvorí sedlová strecha ( klasicky drevený krov ) a ultra moderná rovná krytina- Zenit Max vo farbe Onyx. Stavebné otvory sú vyplnené hliníkovými vchodovými dverami a plastovými oknami s izolačným 3 sklom v čiernej farbe, dodávajú domu nadčasový jednoduchý dizajn.V dome je hotová komplet elektroinštalácia vrátane zásuviek a vypínačov. Dom je napojený na všetky inžinierske siete voda, kanalizácia ,elektrika a opticky internet.
Z obce Veselé je jednoduchá dostupnosť do okolitých miest, už viac sa nemusíte „naháňať. 10 minút do Piešťan (TESCO), 20 minút do Trnavy (TESCO), 37 minút do Trenčína a 49 minút do Bratislavy (AVION). Obec Veselé disponuje kompletnou občianskou vybavenosťou – obecný úrad, pošta, základná a materská škola, ihriská, obchody a reštaurácie.
